呼吸住宅是为一个家庭设计的,位于胡志明市中心。建筑开间3.9m,进深17.8m ,只能通过周围拥挤的小巷进入。 在这个高度密集的社区内,我们的目标是设计一个引入外部环境同时确保隐私的房子。
由于场地的状况, 建筑的开口被限制在房子的前部、顶部和后部。为了调整相邻建筑之间的距离,同时最大限度地扩大开放面积,我们用“绿色面纱”包裹了建筑的上述三个表面,它是由生长在钢网上的爬山虎植物制成的。这个柔软的层,作为一个环境扩散器,过滤阳光直射,防止室内空间过度暴露在外面,没有孤立的感觉。它由每层楼板上的植物箱和附加在上面的模块式镀锌钢件组成。这个结构为整个房子提供了一个绿色的视野,也保护居民免受城市犯罪。
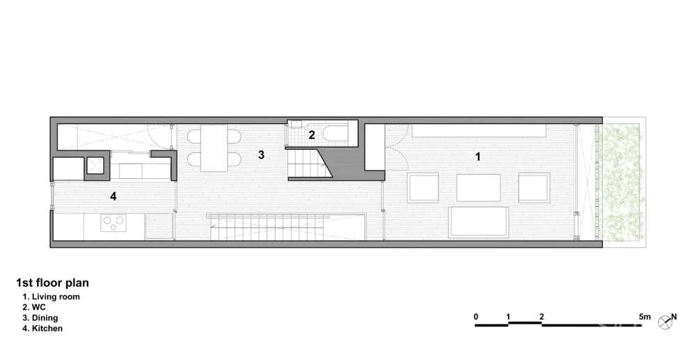
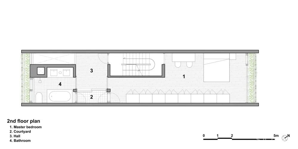
在“绿色面纱”内部,建筑由5个塔楼状的体量交错连接,排列在两个边界墙之间。体量交错排列形成的外部空间,我们称之为“微空隙”,在整个建筑中提供了许多间接照明和通风通道。在两边的邻居封闭的狭长的深地块上,通过多个“微空隙”,而不是一个单独的大庭院,促进住宅每个角落的通风,在环境上更有效。“微空间”在每一层都有开口,通过这些开口,居民可以从四面八方看到更加纵向和对角线的透视视野,可以看到绿色和其他空间。楼梯也被设计成微空间之一,顶部有采光和面向房间的开口。建筑多孔的组成减少了空调的使用,以增强自然通风,在空间和视觉上都创造了联系,并在住宅中创造了深度。
屋顶露台被“绿色面纱”覆盖,成为一个充满绿色的空间,这在拥挤的城市地区是罕见的。该项目的意义在于,它在一个不断发展的大城市的中心创造了一个绿色空间。我们希望这个设计的精髓能够给越南的城市带来积极的影响,因为越南的城市绿地正在以惊人的速度流失。





建筑师 武重义建筑事务所
地址 Ho Chi Minh City, 越南
类别 独立住宅
主持建筑师 Vo Trong Nghia, Kosuke Nishijima
建筑面积 343.0 m2
项目年份 2019
摄影师 Hiroyuki Oki

