这座70平方米的公寓是一对年轻夫妇的家,最明显的特点是一个独特的木制体量。这个由耶岛细纹木(Pau Ferro)打造而成的体量几乎涵盖了公寓的所有私密空间,起到了划分空间和组织室内流线的作用。建筑师使用窗帘将寝室区等私密空间与公共空间分隔开来,通过窗帘的开合,可以有效地将寝室区隐藏或敞开。这么做的好处是住户可以根据场合需要进行空间的组织。
在木制体量之外,公寓内还设有一间厨房、一间餐厅和一间起居室。整个公寓的地板都采用黄色环氧树脂漆。厨房由不锈钢板打造而成,覆有酒红色的漆面,台面后方的墙壁上则是瓷砖饰面。
鉴于本案需要在一个小空间内设置一系列丰富的功能空间,为了能够最大限度地利用空间,建筑师对室内的大多数家具进行了专门的设计,如沙发、餐桌、床、床头柜和床头板等。甚至连住户的宠物狗的小窝也被囊括进了本项目的木工设计。定制的沙发中间设有一个孔洞,以便柱子穿过,同时其可调节的靠背也为住户带去了便利:将靠背放下去,住户既可以躺下舒服地看电视,也可以面朝餐厅坐着交谈。
建筑师和住户都不想要一个单调的空间,因此,本项目所使用的颜色色调和材料都经过了精挑细选,不仅创造出一个和谐的室内空间,还赋予了其独特的个性。

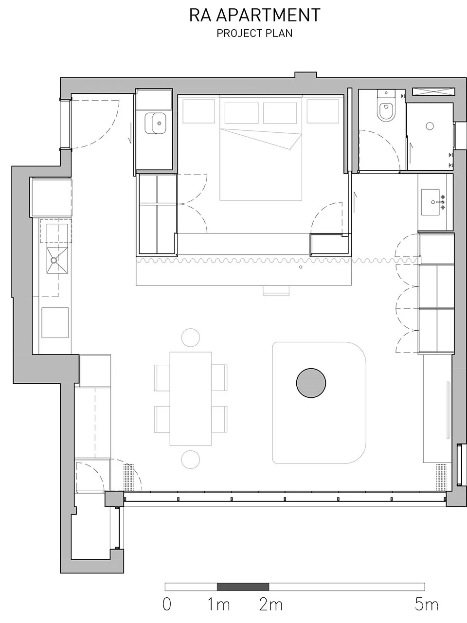
▼平面布置图
▼卧室手绘透视图
▼手绘草图
▼沙发细节设计图
设计公司:Pascali Semerdjian Arquitetos
位置:巴西
类型:建筑
材料:环氧树脂漆 木材 不锈钢 瓷砖
标签:Interior design renovation São Paulo 圣保罗 室内设计 改造

