概念框架 | Conceptual Framework
本项目旨在为一个年轻的家庭创造一个健康且宜居的住宅,提供一个充满阳光的宁静的生活环境,为一家人带去欢乐。这座住宅位于一个充满挑战的、陡峭且狭长的基地上,被一众邻近的住宅环绕着,享有单方向的景观视野,故而建筑师希望在此项目中营造一种宽敞的空间感,为住户提供更美的景观。
 
 
庭院被用于将来自北向的阳光引入室内空间、保护邻居的隐私,并在提供良好的自然光线的前提下创造出一个住宅的遮阳空间。它们不仅能够在不同的房间之间创建视觉交流和声学隔离,还能达到一种借景的效果。玻璃围合出的开放的首层空间顺着地势逐层向下,最大限度地降低了住户对陡坡的感知。
 
 
住宅拥有统一的水平遮阳篷,将住宅上下两层空间的形式分隔开来。首层空间的地面顺着地势逐渐降低至后花园处,其天花板保持一致的高度,增加了空间的体量感。空间和光环境作为本住宅的特色,与设计初衷相符。精简的材料原色调使得空间体量成为了设计的主导。而粗糙的白色砖墙和粗糙的切割石等建筑元素所呈现出的纹理则丰富了空间的色调。室内设计与住宅的整体设计理念融为一体。木材贴面的墙体与住宅的结构和窗户相匹配,从而模糊了室内外空间的边界。
 
 
二层空间则采用穿孔板进行遮阳,不仅保护了住户的隐私,更增强了卧室和书房等更为私密的空间的安全感。穿孔板配合着阳光,在地面上投射出美丽且不断变化的光影效果,在室内外空间中创造出一种强烈的空间特色。住宅基地周边遍布着现代风格的住宅,缺少植被。而当地也没有什么令人印象深刻的建筑元素,导致以往的新住宅不够精致且建筑形式简单。而本住宅则静静地伫立在街景中,二层空间略微向内退让,使首层的景观屋面一直延伸到车库。 一直延伸到卧室的穿孔板为种植屋面创造了一个简单的背景,当夜幕降临的时候,室内的灯光便透过穿孔板散发出来,营造出一种柔和的光环境。紧邻街道的双车库的库门作为住宅立面的一部分,和谐地融入了住宅外观中。
 
 
此外,景观也完美地与整个住宅融为了一体。这个健康舒适的家庭住宅至此完全符合其设计初衷,已经取得了巨大的成功。室内外空间交替出现,不同房间依旧拥有视觉上的交流,这二者在确保视线联系和景观共享的前提下,确保了空间之间必需的分割。建筑师对空间、光线和材料的使用,如双层通高的虚空间和极高的天花板等,创造了一个在视觉上面积更大的住宅空间。建筑师对混凝土结构的处理则包括设置大跨度空间、最大程度减小楼板厚度和使用复杂的连接方式。此外,在结构力学的处理上,建筑师还需要考虑浇筑过程中结构构件对固定装置和配件所造成的后加拉力。本项目需要建筑师与工程师和施工团队密切配合。总而言之,这是一座经济实惠的住宅。建筑师使用各种遮阳板、混凝土框架和简单的细节,最大限度地降低了建筑成本。因此,各种细节设计都是有其各自的目的的,从而使得本项目的材料和连接方式能够允许一些不完美的存在。建筑师选择合适的材料和工匠,从而使其发挥最大的作用。
 
 
可持续性 | Sustainability Information
本住宅设计首要的可持续性原则是使用建筑朝向和各种遮阳板来确定空间的布局,从而确定建筑的最终形式。建筑基地朝向正东方,因此建筑师在设计中考虑了如何最大限度地利用其朝向、如何处理其热质量、设计遮阳和组织对流通风等。除了建筑性能以外,其舒适性、健康性和可持续性将成为其建筑寿命内最大的特点。遮阳篷、庭院、隔板和窗户等都以空间性能、温暖度、光环境、自然通风和热环境的最佳状态为核心进行设计。建筑师没有随意赋予这种住宅一个外观造型,而是通过被动式太阳能设计得到建筑的造型,赋予建筑美感。该住宅中设置安装了雨水收集池、太阳能电池板和低能耗配件等,采用热水供暖,甚至不安装空调,这一系列措施都保证了住宅最大的舒适性。
 
 
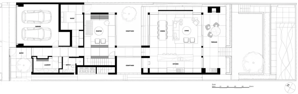
▼首层平面图
 
 
▼剖面图
 
 
 
 
▼立面图
 
 
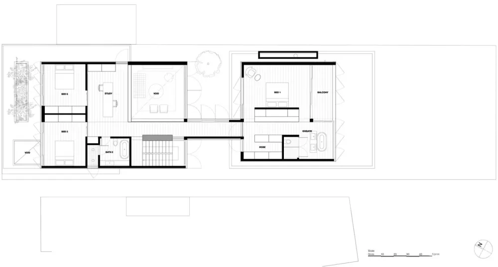
▼二层平面图
 
 
设计公司:Madeleine Blanchfield Architects
位置:澳大利亚
类型:建筑
材料:石材 木材 穿孔板 砖石 混凝土 玻璃
标签:Coogee Small and Delicate Residence Sydney 小而美的住宅 库吉 悉尼


