© Stanisław Zajączkowski
(C)Stanisław Zajączkowski
建筑师提供的文字说明。项目反映了信念,这种架构在回应所有实际需要时,会影响我们的精神福祉和精神。良好平衡的空间可能有益于反思、思考和增强精神和情感的生活。
Text description provided by the architects. Project reflects the belief, that architecture while responding to all pragmatic needs affects our mental well-being and spirituality. Well-balanced space might benefits to introspection, contemplation and strengthens spiritual and emotional life.
Text description provided by the architects. Project reflects the belief, that architecture while responding to all pragmatic needs affects our mental well-being and spirituality. Well-balanced space might benefits to introspection, contemplation and strengthens spiritual and emotional life.
© Stanisław Zajączkowski
(C)Stanisław Zajączkowski
尽管繁荣,但如今许多人仍在与时间的匮乏、疲劳、压倒性和现代世界的复杂性作斗争。缺乏人际关系,视觉噪音和持续的匆忙,分散了我们对真正重要的东西的注意力。
Despite the prosperity, many people struggle nowadays with the lack of time, fatigue, overwhelmment and the complexity of the modern world. Lack of relationships, visual noise and constant rush, distract our attention from what is really important.
Despite the prosperity, many people struggle nowadays with the lack of time, fatigue, overwhelmment and the complexity of the modern world. Lack of relationships, visual noise and constant rush, distract our attention from what is really important.
© Stanisław Zajączkowski
(C)Stanisław Zajączkowski
越来越多的时候,为了找到意义和我们自己的方式,我们故意决定简化我们的生活。我们经常在山区或海洋中寻求庇护,以寻求平静与和平。
More and more often, in order to find meaning and our own way, we deliberately decide to simplify our lives. We often seek for asylum in the mountains or the seas, to find calm and peace.
More and more often, in order to find meaning and our own way, we deliberately decide to simplify our lives. We often seek for asylum in the mountains or the seas, to find calm and peace.
© Stanisław Zajączkowski
(C)Stanisław Zajączkowski
按照米斯·范德洛著名的“少是多”的说法,这个运动可以在很大程度上得到我们周围空间的支持和加强。它提供了一个背景,和平的框架来思考自然和光。
Following the famous “less is more” sentence by Mies van der Rohe, this movement can be largely supported and enhanced by the space which surrounds us. It provides a background, peaceful frame to contemplate nature and light.
Following the famous “less is more” sentence by Mies van der Rohe, this movement can be largely supported and enhanced by the space which surrounds us. It provides a background, peaceful frame to contemplate nature and light.
© Stanisław Zajączkowski
(C)Stanisław Zajączkowski
较少的元素和颜色使人能够集中注意力。一个人可以专注于他自己的想法,祈祷,冥想,和观想周围的风景或季节的变化。建筑为光明创造了一个背景,在基督教中,光象征着生命、上帝和善良。
Less elements and colours allow one to focus. One can concentrate on his own thoughts, prayer, contemplation, and contemplate surrounding landscape or changing seasons. Architecture sets a background for light, which in Christianity symbolizes life, God and goodness.
Less elements and colours allow one to focus. One can concentrate on his own thoughts, prayer, contemplation, and contemplate surrounding landscape or changing seasons. Architecture sets a background for light, which in Christianity symbolizes life, God and goodness.
这座建筑充满了亮光。它是一种乐器,光线根据季节和一天的周期跟随空间演奏交响乐。十字架把一盏漂泊的光投进了入口大厅。而教堂的窗户和天窗却在不断地改变着房间的氛围。
The building is filled with light. It is an instrument, where light plays its symphony, following space according to the seasons and the cycle of the day. The cross casts a wandering light into the entrance lobby. While the chapel’s window and the skylights are constantly changing room’s ambience.
The building is filled with light. It is an instrument, where light plays its symphony, following space according to the seasons and the cycle of the day. The cross casts a wandering light into the entrance lobby. While the chapel’s window and the skylights are constantly changing room’s ambience.
© Stanisław Zajączkowski
(C)Stanisław Zajączkowski
项目中使用的天然材料,如石头、不锈钢、玻璃、木材、白石膏和混凝土,都提供了一种特殊的质感,并以不同的方式吸收光线。他们可以被看作是永恒的,就像当他们变老时,他们获得了高贵。
Natural materials used in the project, such as stone, stainless steel, glass, wood, white plaster and concrete, all offers a specific texture and absorbs light differently. They can be seen as everlasting, as while aging, they gain nobility.
Natural materials used in the project, such as stone, stainless steel, glass, wood, white plaster and concrete, all offers a specific texture and absorbs light differently. They can be seen as everlasting, as while aging, they gain nobility.
© Stanisław Zajączkowski
(C)Stanisław Zajączkowski
Architects PORT
Location Dobrzeń Wielki, Poland
Lead Architects Józef Franczok, Marcin Kolanus, Magdalena Targosz, Artur Nitribitt
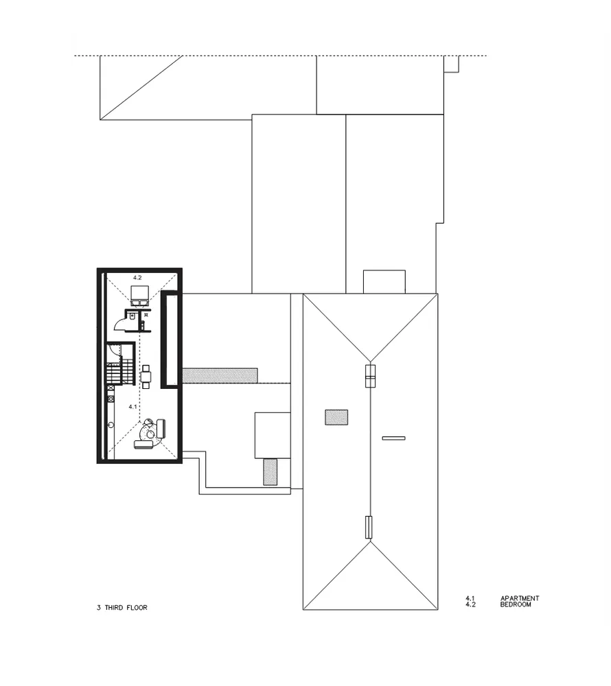
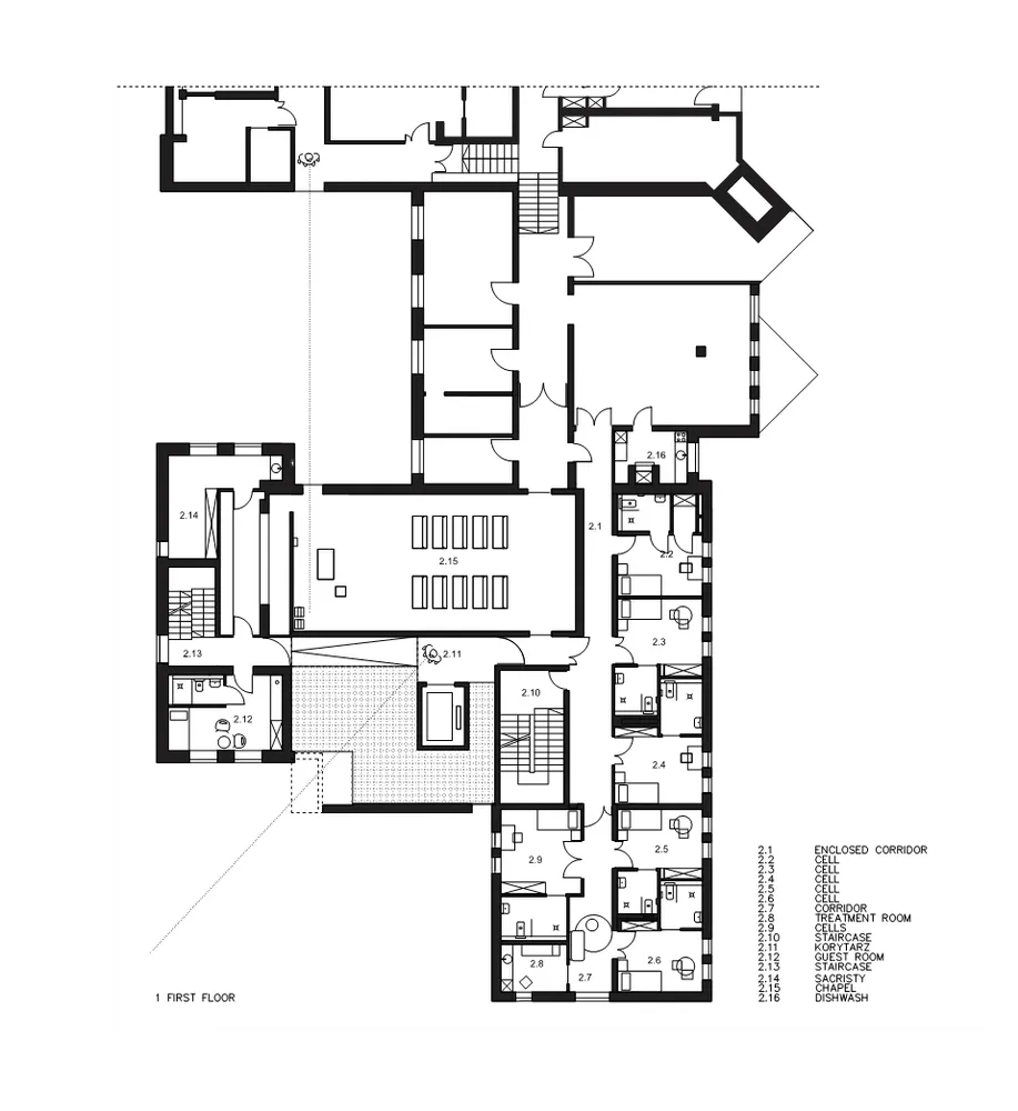
Area 1817.3 m2
Project Year 2018
Photographs Stanisław Zajączkowski
Category Monastery

