© Fiona Spalding-Smith
菲奥娜·斯伯丁-史密斯
架构师提供的文本描述。在过去几十年中继续证明自己设计意图的建筑,是加拿大皇家建筑学会(RAIC)和加拿大遗产基金会(NationalTrust)颁发的年度奖项的重点。Prix du XXe sièclee承认一个杰出的贡献,加拿大建筑的20世纪的设计。
Text description provided by the architects. Buildings that continue to prove their design intentions over the course of decades are the focus of an annual prize awarded by the Royal Architectural Institute of Canada (RAIC) and Heritage Canada The National Trust. The Prix du XXe siècle recognizes an outstanding contribution to Canadian architecture of 20th century design.
Text description provided by the architects. Buildings that continue to prove their design intentions over the course of decades are the focus of an annual prize awarded by the Royal Architectural Institute of Canada (RAIC) and Heritage Canada The National Trust. The Prix du XXe siècle recognizes an outstanding contribution to Canadian architecture of 20th century design.
© Fiona Spalding-Smith
菲奥娜·斯伯丁-史密斯
该奖项可以表彰由来自任何国家的建筑师在加拿大设计的建筑,也可以表彰由加拿大建筑师设计的世界任何地方的建筑。2018年的获奖者是多伦多中央基督教青年会(1984),由多伦多钻石施密特建筑师事务所设计。
The award can recognize a building in Canada designed by an architect from any country, or a building anywhere in the world designed by a Canadian architect. The recipient for 2018 is the Toronto Central YMCA (1984) designed by Toronto-based Diamond Schmitt Architects.
The award can recognize a building in Canada designed by an architect from any country, or a building anywhere in the world designed by a Canadian architect. The recipient for 2018 is the Toronto Central YMCA (1984) designed by Toronto-based Diamond Schmitt Architects.
Axonometry
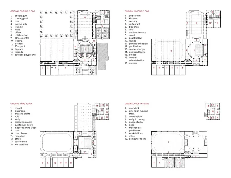
这个14,400平方米(155,000 sf)的设施使基督教青年会能够继续其领导和服务于市中心居民的传统,同时满足日益增长的市中心人口的生活方式和文化需求。当它开放的时候,很少有人真正住在附近;今天,这个地区的两旁都是继续出现在城市天际线上的住宅楼。根据基督教青年会国际的指标,中央Y被认为是世界上最成功的之一,会员利用率最高。
This 14,400-square-metre (155,000sf) facility allowed the YMCA to continue its tradition of leadership and service to inner-city residents while responding to the lifestyle and cultural needs of a growing downtown population. When it opened, few people actually lived in the vicinity; today, the area is lined with residential towers that continue to emerge on the city skyline. The Central Y is considered one of the most successful in the world, with the highest membership utilization, according to metrics of YMCA International.
This 14,400-square-metre (155,000sf) facility allowed the YMCA to continue its tradition of leadership and service to inner-city residents while responding to the lifestyle and cultural needs of a growing downtown population. When it opened, few people actually lived in the vicinity; today, the area is lined with residential towers that continue to emerge on the city skyline. The Central Y is considered one of the most successful in the world, with the highest membership utilization, according to metrics of YMCA International.
© Lisa Logan
莉萨·洛根
这一不同的方案分为五种建筑类型-每一种都有其各自的功能和建筑形式-由宽敞、合乎逻辑和诱人的循环路线统一起来,这些路线揭示了所有主要项目区域,并鼓励公众通过大楼。
The distinct program, articulated in five building types – each with its own functional and architectural form – is unified by spacious, logical and enticing circulation routes that reveal all major program areas and encourage public passage through the building.
The distinct program, articulated in five building types – each with its own functional and architectural form – is unified by spacious, logical and enticing circulation routes that reveal all major program areas and encourage public passage through the building.
Courtesy of Diamond Schmitt Architects
戴蒙德施密特建筑师
该设施包括一个完整的娱乐设施,包括两个游泳池、双人体育馆、网球场、舞蹈室、室内和屋顶跑道、300座多用途礼堂和日托中心。一个决定性的特征是运动员的楼梯,它连接在一个线性天窗下的各个层次。
The facility includes a full recreational complex with two swimming pools, double gymnasium, racquet courts, a dance studio, indoor and rooftop running tracks, a 300-seat multi-use auditorium and day care centre. A defining feature is the Athletes’ Stair, which connects all levels under a linear skylight.
The facility includes a full recreational complex with two swimming pools, double gymnasium, racquet courts, a dance studio, indoor and rooftop running tracks, a 300-seat multi-use auditorium and day care centre. A defining feature is the Athletes’ Stair, which connects all levels under a linear skylight.
© Fiona Spalding-Smith
菲奥娜·斯伯丁-史密斯
钻石施密特建筑师(Diamond Schmitt Architect)校长杰克·戴蒙德(Jack Diamond)说,“这个想法是为了在各个区域之间建立视觉联系,并以意想不到的视角让游客惊喜,比如泳池区,以及从大厅直接穿过大楼的景观。”“我们认为流通的纲领性要求是社会参与的一个机会。”
“The idea was to create visual connection between areas and to surprise visitors with unexpected views, such as the pool areas and a view straight through the building from the lobby,” said Jack Diamond, Principal, Diamond Schmitt Architects. “We viewed the programmatic requirement of circulation as an opportunity for social engagement.”
“The idea was to create visual connection between areas and to surprise visitors with unexpected views, such as the pool areas and a view straight through the building from the lobby,” said Jack Diamond, Principal, Diamond Schmitt Architects. “We viewed the programmatic requirement of circulation as an opportunity for social engagement.”
© Lisa Logan
莉萨·洛根
这座建筑的建造是为了抵御体育项目的繁重交通和体育活动,使用的是耐用和坚固的材料-水磨石地板、灰泥地板、混凝土和金属基板,这些材料在2018年看上去和大约35年前该设施启用时一样好。声学考虑是很重要的池,在那里三角形,板状混凝土挡板在天花板上阻尼声音。
The building was constructed to withstand the heavy traffic and physical activity of the athletics program by using durable and robust materials – terrazzo flooring, stucco, concrete and metal baseboards that look as good in 2018 as they did when the facility opened almost 35 years ago. Acoustic considerations were important for the pools, where triangular, board-formed concrete baffles in the ceiling dampen sound.
The building was constructed to withstand the heavy traffic and physical activity of the athletics program by using durable and robust materials – terrazzo flooring, stucco, concrete and metal baseboards that look as good in 2018 as they did when the facility opened almost 35 years ago. Acoustic considerations were important for the pools, where triangular, board-formed concrete baffles in the ceiling dampen sound.
这个用途广泛的礼堂有可伸缩的座位和一个可伸缩的地板,三面开放,以建立一个公共广场。当弯曲的,定制的,铅内衬的门关闭时,房间实现了性能和私人功能的隔音。
The highly versatile auditorium has retractable seats and a sprung floor that opens on three sides to create a public piazza. When the curved, custom-made, lead-lined doors close, the room achieves acoustic isolation for performance and private functions.
The highly versatile auditorium has retractable seats and a sprung floor that opens on three sides to create a public piazza. When the curved, custom-made, lead-lined doors close, the room achieves acoustic isolation for performance and private functions.
© Steven Evans
(C)史蒂文·埃文斯
在2011-12年,钻石施密特建筑师的翻新在南面增加了一个玻璃盒子,在二楼增加了一个社区会议室,在三楼增加了社区新人信息中心。该设施的最初设计意图保持不变:在身体、精神和精神方面为社区服务。
In 2011-12, renovations by Diamond Schmitt Architects added a glass box addition on the south exterior, adding a community meeting room on the second floor and Community Newcomer Information Centre on the third floor. The original design intent of the facility remains the same: to serve the community in body, mind and spirit.
In 2011-12, renovations by Diamond Schmitt Architects added a glass box addition on the south exterior, adding a community meeting room on the second floor and Community Newcomer Information Centre on the third floor. The original design intent of the facility remains the same: to serve the community in body, mind and spirit.
Architects Diamond Schmitt Architects
Location Toronto, ON, Canada
Category Fitness Club
Lead Architects A.J. Diamond, Donald Schmitt, Vic Jaunkalns, Derek Revington, Jon Soules
Area 14400.0 m2
Project Year 1984
Photographs Fiona Spalding-Smith, Lisa Logan, Steven Evans

