作为一个孩子,甚至是一个青少年,绝对是一种特别的感觉,一种无忧无虑的感觉。对我们的孩子有更好的教育条件的热情,去他们想去的地方和渴望去校园,一直是创造一个积极和充满活力的环境的主要动机。现在的学校除了教学是一种游戏,娱乐和其他任何东西,使学习更有吸引力的因素。
多功能空间,在一个地方开发多用途,每个空间的自然采光,各种颜色和室内绿色的结合是科索沃美国学校新校园的特点。
院子里摆满了圆形的绿洲,有些绿洲是绿色的,有些则充满了孩子们的游戏,这些都是相互关联的。同时,丰富的多功能露天剧场,各种运动的开放地形和封闭地形。其中包括2670平方米的面积,因此得名校园。
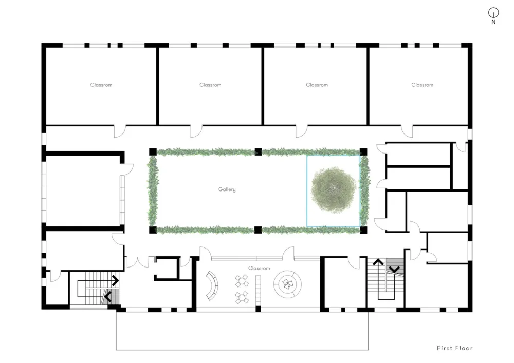
幼儿园的特色是中央画廊,它将周围所有空间与内部中庭连接起来,中庭中生长着一株多年的橄榄树。这棵树令人印象深刻,它将会在那里,并将被一代又一代!. .奥利弗认识所有的学生,它知道他们中谁将成为未来的领袖!有时,它给人的印象是一个从外面表达爱的祖父。来自上方的灯光为画廊增添了艺术价值,为许多功能创造了空间,一句话,创造了生活。
幼儿园根据教育机构的标准分为两个功能独立的部分,面积为1480平方米
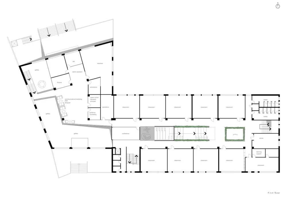
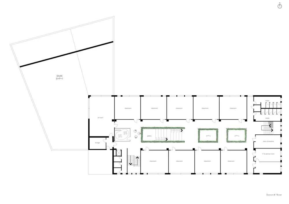
考虑到高中是面向青少年的,当然是一个面积更大的环境,达到6605平方米。学校的特点是扩大了,水平和垂直的元素。
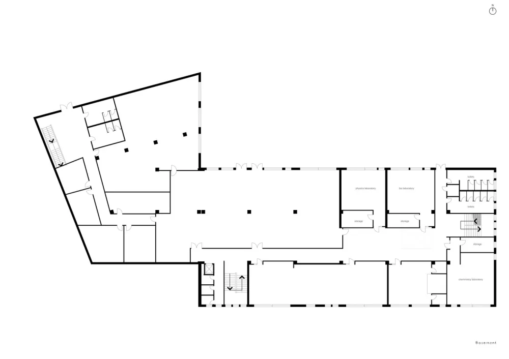
地下有技术设施、实验室、厨房和自助餐。
一楼的主入口作为一个重要的元素,具有相当灵活的空间,可以举办各种活动。这个空间充满了绿色,有一个三层画廊的礼堂,连接了上面的三层。画廊和礼堂通过自然的天顶采光,使学校成为一个整体。
每个部分都有自己独特的颜色,赋予每个部分不同的身份。而在画廊里,色彩的运用被视为一种复杂。最重要的是,当小学设施和多功能设施建成时,校园将成为合格的。


位置:普里什蒂纳,美国
年份:2018
摄影:Leonit Ibrahimi

