位于蒂尔堡车站旁边的LocHal图书馆已于2019年1月正式向公众开放。该建筑由一座30年代的铁路机车库改造而来,如今成为了一个具有铁路主题特色的公共聚会场所。稳固的钢结构为各类展览和活动提供了理想的背景,超大面积的纺织幕帘则延续了Bibliotheek Midden-Brabant图书馆旧馆设计理念。这里不仅是一个“消费”信息的场所,更是生产信息的园地:除了公共图书馆之外,LocHal还容纳了Brabant文化艺术中心、Brabant C文化创意产业投资基金会和Seats2Meet公共工作空间。
LocHal图书馆的建筑设计是Civic Architects与Braaksma & Roos Architectenbureau和Inside Outside/Petra Blaisse紧密合作的成果。Arup担任了项目的可持续性设计和声学顾问。图书馆及其内部的一系列“实验室”和办公场所的室内设计由Mecanoo事务所完成。
公共集会空间 | A public meeting place
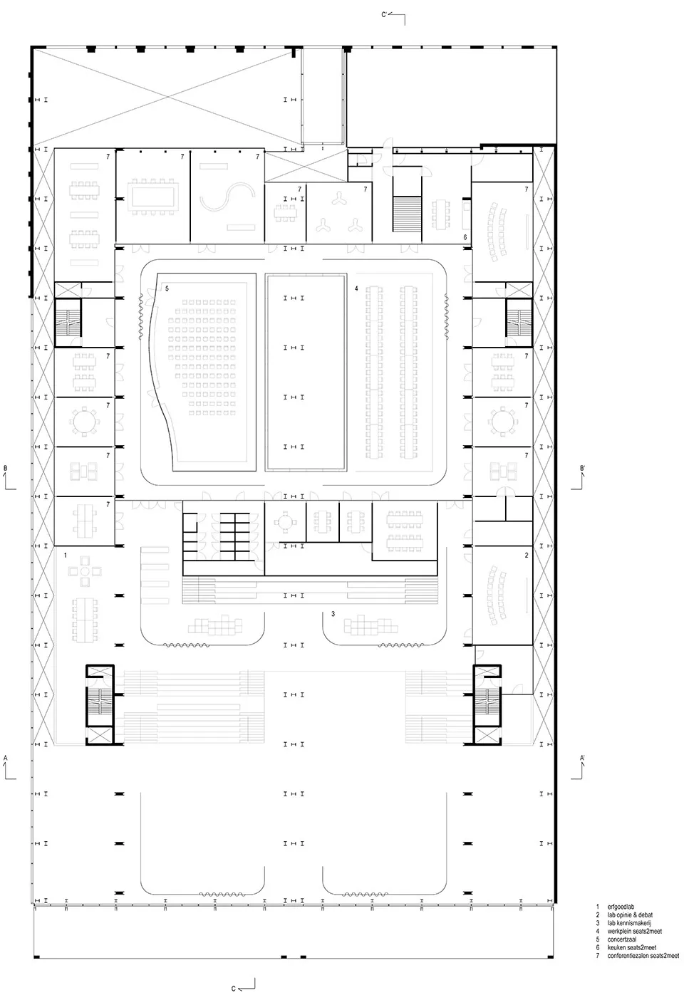
LocHal图书馆的最大特征应该在于它庞大的尺寸。图书馆的面积为90×60平方米,高度达到15米,兼备了宏伟和亲切的特点。入口大厅犹如一个带有屋顶的城市广场,摆放着宽阔的公共阅读桌,并设有展览空间和咖啡亭。广场上的大台阶可以为活动和表演提供超过1000个座位。台阶上方的主楼层以宽阔的玻璃幕墙围合,拥有充足的光照。三层的长廊和楼梯使人们可以在安静的环境中充分享受阅读。再往上一层是宽阔的阳台,为参观者带来优美的城市全景。
粗野的装饰风格 | A robust décor
旧工业建筑的主体结构和各种原始特征得到了精心的维护和保留,同时,增建的部分也充分保持了对材料的“诚实”。黑色钢材、混凝土、玻璃和木材被大面积地应用,纺织幕帘则强调出空间的尺度和色彩属性。从近处观察,地板、立柱和楼梯均呈现出特殊的纹理和质感,尤其是在白天,当阳光从半透明的幕帘中透过的时候。当夜幕降临,室内空间转而成为主要的光源,在市中心形成一座诱人的灯塔。既有材料的不完美特质恰恰塑造了LocHal的独特美学,各类空间被集中在一个体量庞大的工业建筑当中,而独具匠心的家具和装置则为图书馆整体的视觉体验增添了丰富而有趣的变化。
纺织幕帘 | Textile screens
根据不同的事件和活动需要,图书馆的各个空间对隐私性也有不同程度的需求。为此, Inside Outside设计了6块尺寸巨大的纺织幕帘,其高度从地面延伸至天花板顶部,一方面突出了建筑的壮观尺度,另一方面也定义出独立的区域,改善了室内空间的声学效果。这些幕帘的总面积达到4125平方米,可以通过计算机系统进行定位。例如,它们可以移动以划分Seats2Meet工作空间和上方的图书馆楼层,或者在大台阶处划分出一个小型的半私人礼堂。最大的一块幕帘高15米,宽50米,可以用来容纳咖啡亭或为其提供完美的背景。当幕帘被放置在南侧的窗户前,大厅的光线将会变得更加柔和。当阳光投射在这些透明的表面上时,它们看上去就像是从高处倾泻下来的瀑布,在建筑内部形成一道华丽而优美的景观。



▼横剖面图

▼项目团队分工示意图
▼场地平面图
▼三层平面图
▼二层平面图
▼首层平面图
▼纵剖面图

设计公司:Civic Architects
位置:荷兰
类型:建筑
材料:木材 钢 混凝土 玻璃
标签:renovation Tilburg 改造 蒂尔堡

