当Studio Puisto Architects 受到委托为“世界桑拿之都” Tampere设计一个桑拿房时,建筑师意识到这是一项重大而特殊的事业。Tullin桑拿房通常翻译为海关桑拿房,是Dream酒店延伸出来的一个公共桑拿空间。Dream酒店位于街道对面,也是由Studio Puisto Architects设计的。位于前红砖工业区中心的Tullin桑拿是这个活跃城市中心的避难所。Tullin桑拿房名字来源是因为该地曾经是市政府的海关检查站,建筑师希望它能够成为一个居民和游客聚集的空间。
Tullin建立在kortteli桑拿或社区桑拿的概念之上,意指在19世纪晚期桑拿具有不可或缺的作用。当时城市空间有限,住宅面积通常很小,无法容纳私人使用的洗手间。为了满足人们对卫生的基本需求,korttelisauna 应运而生并且很快成为公共生活起居室,人们聚集在这里不仅仅可以洗浴,还可以交流思想与观点。作为一个现代化的kortellisauna,Tullin同样也是Dream酒店与城市大区域的公共起居室。除了桑拿房外,空间还包括一个小酒馆与共享工作区域,这些空间共同营造出一个充满活力的环境,使人们能够在这里放松和促进有意义的交流。
建筑设计 几十年前,Tullin桑拿房现存建筑被用做附近火车站的仓库。为了保护其丰富的历史与工业建筑风格,在Tullin桑拿房整体设计中,建筑师诚实地面对建筑历史,并为建筑增添了一丝现代魅力。整体设计中最重要的材料就是将天然、充满温暖感的芬兰松树与现存的冰冷、粗糙的混凝土并置。建筑由此产生了怀旧感,在木材与混凝土之间创造了生动、互补的对话。其它经过深思熟虑的设计细节包括将环状堆叠混凝土室重新设计为淋浴区并且重申了设计过程中的概念与理念。 ▼混凝土与芬兰松木并置的空间 ▼环状混凝土室重新设计为淋浴区 ▼休息区 设计包含两个传统的木材加热芬兰桑拿小屋,两者具有鲜明对比。一个室内更黑,更封闭,像是savusauna或者叫熏蒸桑拿。另一个颜色更明亮,通风好,像是典型的夏季别墅。两个原木材料的桑拿室都是由当地工匠建造的,他们个人及工作方式都与桑拿有着根深蒂固的联系,确保了两种桑拿体验的真实性。 ▼桑拿室中一座是较为封闭黑暗的桑拿小屋 ▼另一座明亮通风好的桑拿小屋 体验设计 当涉及到整体用户体验时,建筑师的设计思想是将真诚的、仪式性的桑拿环境引到桑拿本身之外——无论是在比喻意义上还是字面意义上。其中一座木制桑拿房通过一扇小彩窗切入到前台及小酒馆区域,为即将展开的桑拿空间提供了一个象征性的高潮点。此外,为了维护温暖的室内空间并隔绝混乱的城市空间,外部窗户被处理成柔和的乳白色,仿佛也是被桑拿蒸过一样。设计由此产生了一种平静宁和的氛围,人们从进入的那一刻,就立即产生了强烈的桑拿欲望。 ▼木制桑拿房通过一扇彩色小窗切入到前台和酒馆区域
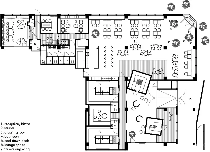
▼小酒馆空间细部 此外,传统的桑拿用品如金属saunaämpäri或者叫桑拿桶,使用者在一进入桑拿房就能够看到并且工作人员也会立即发放给使用者。这些不仅仅是包含桑拿浴的必需品如毛巾等物品的桶,它们还有助于确立Tullin桑拿的特点和品牌。这一特征一直延续到小酒馆的菜单中,小酒馆菜单仅提供与众不同的当地美食与食材。 ▼帮助Tullin桑拿房确立其特点和品牌的金属桑拿桶 ▼提供当地美食的小酒馆的菜单 建筑师维护桑拿完整体验的承诺体现在整个Tullin桑拿房的设计中。Tullin桑拿房成为一个可靠、真实、温馨的起居室,为当地和其他社区提供服务——建筑师认为这堪称是世界桑拿之都一个完美的成果。 ▼洗手间 ▼平面


现在这个浮躁的世界,能细心整理一些东西发上来的越来越少了。要么就是敷衍的图片,要么就是枯燥的文字。之后就是AI生成的预制菜类的打包便捷快餐了。感谢楼主的分享,让我能在大智能无人化来临之前,看到同类发出的项目。有幸与您互动,缘分。
给客户根据大概豆腐干