citizenM已入驻上海最具潜力的闵行区虹桥商业区。Concrete负责新建成的拥有303间客房citizenM酒店的室内设计。citizenM上海虹桥店是该品牌在亚洲的第二家门店(第一家位于台北北门)也是citizenM,Shun Tak(信德集团),China Resources(华润集团)与Concrete的第二次合作。citizenM是紫藤路地铁站大规模开发项目的一部分,正在建设的建筑有办公楼、酒店和MixC购物中心。项目位于上海西部中环路与外环路之间,靠近古北区,这一地区又被称为韩国城。
 
 
酒店公共空间设计的目标是成为客人和周围办公人员可以休闲的地方,除了是为酒店客人塑造的一个充满活力的大厅也是这个新区域所有人员的活动空间。酒店二层一个面积较大的societyM区域可以让人们在这里坐下来工作。公共空间有两个入口:一个正式入口和一个非正式入口。正式入口连接着出租车停靠处。从外部进入citizenM,人们立刻就能看到这里典型的橱柜和多彩风格与艺术的空间。在前台上空有一条游动的发光巨龙。从这个酒店的核心空间,人们能够对citizen呈现的一切一览无余:collectionM,一座连接到societyM的标志性楼梯,会客区域和中央吧台。非正式入口位于公共空间的前端,毗邻一个露台和一面从外部一直延伸到室内的艺术墙。露台与配备有乒乓球桌、秋千椅和座椅的室内空间形成联系,从内到外展现出citizenM的活力。
 
 
吧台是公共空间的核心,一旁标志性的沙发区铺有锦鲤地毯,坐在上面仿佛是坐在中国传统池塘中一样。吧台两侧各有一个庭院,为内部房间和首层的公共空间提供光照。庭院是一个封闭空间,内部有红色树椅、家具和灯笼,这些都是citizenM特征的一部分。公共空间的入口和尽端空间由贯穿整个空间多彩艺术墙清晰地突显出来,艺术墙延伸到餐厅空间。
 
 
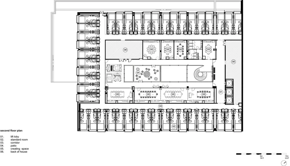
标志性的楼梯将人们从首层引入位于二层的societyM。这个空间包括7个会议室和一个休息区。环绕着会议室的走廊靠近内部庭院,外部露台可以看到地面层的露台和大厅。
 
 
 
 
 
 
 
 
 
 
 
 
 
 
 
 
 
 
▼首层平面
 
 
▼二层平面
 
 
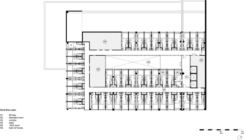
▼三层平面
 
 
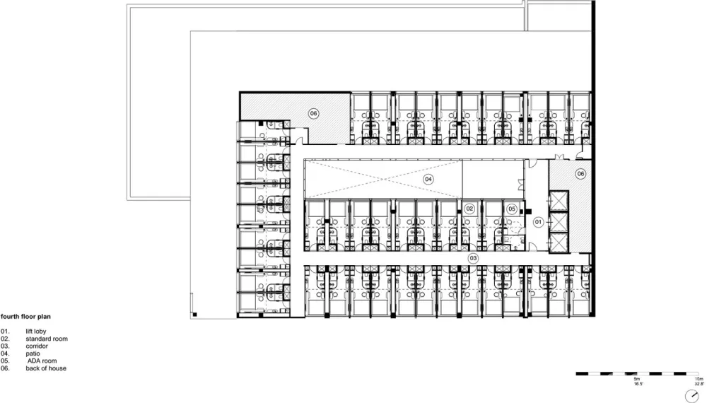
▼四层平面
 
 
设计公司:concrete
位置:中国
类型:建筑
材料:木材 金属 瓷砖 木地板 玻璃 地毯 家具 灯光 灯具
标签:Interior design Shanghai 上海 室内设计


