人们及其周围环境的健康和安乐是HAUS设计概念的关键。它是一种可靠的、富有创造性的建筑设计手法,旨在为标准化建筑带来附加值。建筑工程的委托方Marcove和来自建筑事务所BAILORULL的建筑师们结合他们以往的项目经验和可靠性创建了HAUS理论——这是一个创新性的设计概念,它将健康标准应用于人们的居住空间,旨在改善人们的生活和环境。以这个概念为基础,国际建筑设计实践事务所BAILORULL进行了一个名为Espai Natura(自然空间)的集体住宅开发项目。该项目共有16套对流通风的住宅,每层4户,每户面积都将近140平方米,设计目的是改善住户和其周围环境的健康状况。
这座独立式的住宅建筑位于西班牙的Sant Cugat del Vallès小镇,地理位置优越,距离巴塞罗那仅有20公里,交通便利,同时也方便住户前往Parc de Collserola公园的北坡,享受自然风光和资源。
多年来,为了响应建筑事务所BAILORULL Arquitectura和项目委托方Marcove在项目过程中的共同利益,建筑师们进行了不停歇的研究,最终创立了HAUS理论:一种可靠且富有创造性的建筑形式,不仅能够为生活空间带来一系列完整的健康标准,更能够提高住户自身及其周边环境所带来的幸福感。基于HAUS理论所开展的第一个项目便是本项目Espai Natura(自然空间),该项目还邀请了一个由多名专家学者组成的多学科小组,他们追求卓越,关注健康和可持续发展,为项目提供了许多建筑学以外的知识支持。
在建筑方面,新建筑基于三个主要原则,符合HAUS理论。首先,建筑师针对一项研究进行空间构思,该研究表明,在经历了七年的房地产严重危机之后,居住类空间不再提倡临时住所,即现实功能小于所需功能的空间。因此,建筑师提出在Espai Natura自然空间项目中打造一个宽敞灵活的居住类空间,空间功能可以随时满足住户的各项功能需求,且便于住户适应居住环境。其次,为了提高建筑的能源效益,充分利用街区的最佳朝向,建筑师设置了如同巴塞罗那Eixample扩展区路网一般的走廊,为所有住户提供了多用途的户外空间。最后,为了能够最大程度地尊重环境,该项目以健康资源为基础,并选择可持续的建筑材料,避免了可能对环境造成伤害的建筑过程。
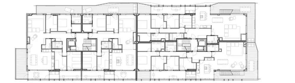
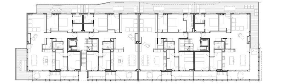
在设计方面,Espai Natura自然空间住宅楼呈现出紧凑的阶梯式体量。该体量长50米,宽13.5米,采用钢筋混凝土结构,适应街道的地形。每套住宅都有四间卧室(一间主卧和三个双人间)、三间设施齐全的浴室、门厅、享有对流通风的起居室和餐厅空间、厨房和洗衣房,所有空间都通过大空间和阳台、1.8宽的走廊等过渡空间进行连接和布置,为室内外空间提供了一个中间的转换空间。
这些过渡空间充当了气候缓冲区。住宅楼的西立面由一个由栗木和玻璃组成的轻质走廊围护结构构成,该围护结构由三部分组成:外立面、缓冲空间和预制混凝土构件组成的遮阳百叶板。建筑内部在冬季产生热量,此时保持缓冲空间的关闭状态,夏季时,则可以打开走廊空间,以自然通风的形式带走室内多余的热量。
建筑事务所BAILORULL Arquitectura和项目委托方Marcove选择了用抽象的建筑来重新诠释基地状况、建筑材料和空间尺度,并提出了呼吸空间的概念,从而能够可持续地对当代居住空间的使用要求作出回应。在该项目中,建筑师们所面临的挑战是如何通过设计、建造、更新改造和提供咨询的方式,普及HAUS的建筑理念,从而推动集体住房、公司总部、公共或私人设施和医疗保健等领域的建筑设计的发展和进步。
建筑的内表皮则采用连续阳台的形式,设有镂空面板,保证了住宅室内的景观视野。Espai Natura自然空间住宅楼所提出的空间布局方式和建筑类型通过一种被动式的能源设计,合理运用太阳能,调节室内的热环境,而不需要额外安装空调,因此,打造出了一个更加可持续、更加环保的建筑设计方案。
该建筑位于西班牙的圣库加特(Sant Cugat),入围了2018年第60届FAD奖的建筑类别奖;该项目还入围了2018年举办的第15届加泰罗尼亚建筑奖所设的“创新建筑奖”。此外,Espai Natura自然空间住宅楼是西班牙境内第一座获得绿色建筑委员会所授予的四绿叶评级的、容纳了超过6套住宅的居住类建筑。同时,它也是西班牙首批获得A级能源认证的住宅建筑之一。

Espai Natura自然空间住宅楼的设计标准产生了诸多有利条件,如最佳热环境、生物电和光照环境;可以改善水资源和空气质量;并最大限度地减少电场、磁场和涂料的毒性可能对住户造成的伤害。此外,建筑还使用当地的资源和材料,从而保证了该项目的基本职责和一致性。
Espai Natura自然空间住宅楼中还设有一个泳池、一个种满了当地物种的花园(物种皆来源于基地周边的Vallès景观区)、一个儿童游乐区和一个用雨水浇灌的菜园等。这些空间作为一个整体,将同时服务于本项目和规划中后三期住宅楼的所有住户:项目二期正在建设中,是一座容纳了15套住宅的建筑,项目三期是包含了20户复式居住空间的住宅楼,项目四期则共包含八套住宅。以上提到的所有建筑都遵循HAUS的标准。
▼剖面图
▼立面图
▼建筑设计草图
▼一层平面图
▼二层平面图
▼三层平面图
设计公司:BAILORULL
位置:西班牙
类型:建筑
材料:钢筋混凝土 木材 混凝土 预制混凝土板 玻璃
标签:Sant Cugat 圣库加特

