这个原本是135m²的两层小复式,原有三间卧室,两个洗手间,极少的收纳储藏空间。阁楼尖顶最高处距离地面8.2米,最低处距离地面2米多。阁楼顶部的建筑结构及其错乱不规则,墙面也是各种菱形怪状,所以顶部的空间十分浪费。
改造后剖面图
设计师为了更好的合理利用阁楼的层高,重新规划布局,为了更好利用层高及复杂的结构,决定拆掉原有位置的楼梯,经改造后变成三个错叠的层面。
客厅以极简的线与面为元素,电视机墙,电视,玻璃隔断,钟,体块交错,卡其色地毯与暖灰色沙发,让家更温馨。
沙发背景由白色与深灰色块面组合,加上两幅装饰画,体块与电视机背景相呼应,每个物件都有自己存在的必要性。
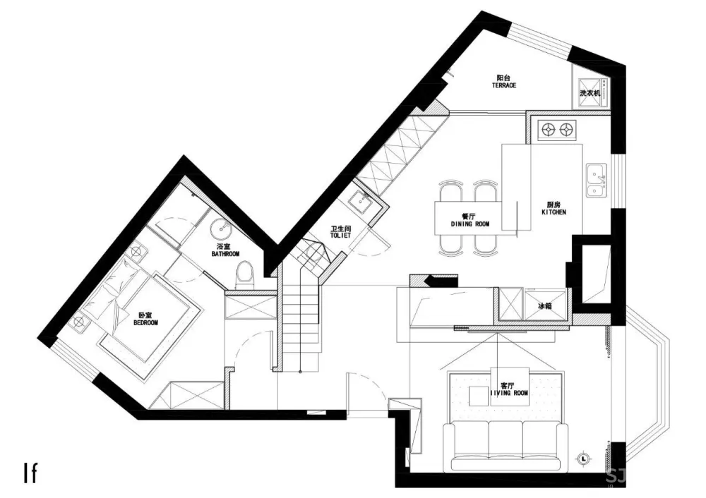
红色的玻璃隔断合理地划分了客厅、厨房与餐厅的区域,餐厅与阳台相连,采光极好,半开放式的厨房,让小而独立的厨房变得更宽敞,操作台面与餐桌连接成为一个整体,简洁而大气。
一层至二层楼梯,黑色钢板折成的踏步,黑、白、红三色的对比,如简约的现代艺术画。
主卧以白色极简为格调,低调内敛而不失精致,洗手间采用通透式的设计,扩大了空间的有效尺度,也增加了生活的艺术情趣。
“天井”的设计让各个小空间既是独立的存在,又加强了空间之间的联系。屋内共有两处“天井”,一处是一层至二层,另一处则是从一层至三楼顶部,8.2米的挑空设计使整个空间通透而有趣!
每个房间都会有一个非直角被改成直角,让空间更合理,同时,原先的压抑与束缚感也少了,取而代之的是新奇与舒适感!
二层有一个书房、一个储藏室、两个卧室。书房空间较大,可容纳多人办公与休闲有两个窗户,采光非常舒适。
二层共有两个卧室,并且每间都有独立卫生间,让日常生活更方便。
整个设计过程中最大的难度就是这个三层阁楼的顶部以及墙面的怪异造型,为了改善居住的舒适度,设计师在结构的改造上狠狠地下了一番工夫,对墙面做了一些平面调整,去掉凌乱感,提升舒适度。
三层则是一个娱乐休闲的空间和两个储藏室,阁楼与书房互通,大大增加了采光,还多了几分空间的互动。
此次设计的主题《虹》,虹代表七彩。整个空间底色为白色的基调,红色的玻璃隔断把握了空间的颜色要素。
室内装饰画,采用了设计师本人原创摄影作品《幻彩世界》系列,与玻璃隔断的色彩相互配合,很好地契合了设计主题。怪异阁楼,经改造后,竟如艺术画廊一样充满格调。
金选民
室内设计师、摄影家、艺术家
主要从事室内设计与摄影、艺术摄影。老本行做的是室内设计,2004开始,室内设计暂时搁置,逐步踏入摄影圈,其作品视角独特,表现鲜明,曾被奥运冠军、企业家李宁,室内设计大师陈幼坚,前任英国驻上海总领事CarmaElliot女士,著名歌唱艺术家蔡国庆等国内外知名人士收藏。
2017年,以《29平米重构》的室内设计项目,重新开启了室内设计师之路。将搁置十来年的室内设计又拿了起来。
摄影作品主要有《建筑》、《人文》、《风光》以及《创意》四大主题。
金翔
室内设计师、平面设计师
平面设计师跨界投身室内设计领域
以平面设计的手法影射到室内设计
项目名称:虹
项目类型:住宅改造
项目地点:中国上海 松江区
项目面积:135m²
项目设计:金选民、金翔
项目摄影:金选民
完工时间:2019年2月


谢谢分享