这次和Thai Chen泰臣合作,在成都新南凯德开了一家泰式茶餐厅。我们将餐车搬入室内,希望在保留空间原始美感的同时添加一些不同的风味。
泰臣主营道地的泰式轻食,从主厨到食材到香料,都追求原汁原味,却唯独在空间上不想要复杂浮夸的异域装饰,这与我们的设计理念十分契合。
我们将“异域”置换为“错位”,并搬来一辆餐车,试图塑造一处异于城市的、不拘于形式的营地,引导顾客专注于食物本身。
▼开敞无遮挡的空间,加上处于核心位置的餐车吸引并引导了客流。
▲前紧后松的空间格局以及丰富的座位形式提升了客容量,营造了热闹的气氛。
为了进一步加强营地的户外感,我们用了一系列自然感更突出的物件,如风化木桌面、藤编座椅,以及球形灯串,但其中最重要的还是绿植。
种类丰富且高低错落的植物为空间带来充沛的生气,不仅中和了混凝土的冷硬,还激发了一些新的想法。
我们依据植物的走势对原始的混凝土墙面做了局部特殊处理,并配合灯光突出肌理,以丰富空间层次。
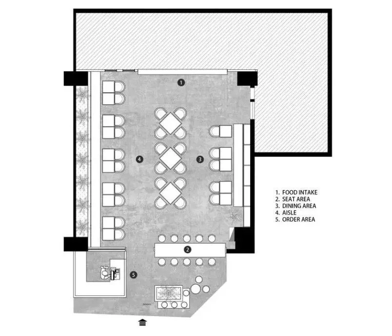
▲平面图
我们从曼谷搬来一辆餐车,让它被植物环绕,希望为顾客塑造一种身处户外营地的错位感,以突显异国美食,也希望能向大众展示空间抛开繁琐装饰后,原始的魅力。
设计机构:武汉朴开十向设计事务所
网站:www.puresdesign.com
邮箱:puresdesign@126.com
空间设计师:熊天宇 张筱锴
设计执行:陆宏达 冯程程 舒心慰
项目地址:盛和一路99号凯德广场B1
项目面积:160㎡
完工时间:2019.1
摄影:张筱锴
材料:镀锌铁皮 风化木 冲孔折板
餐饮顾问公司:成都华航乐星餐饮管理有限公司

