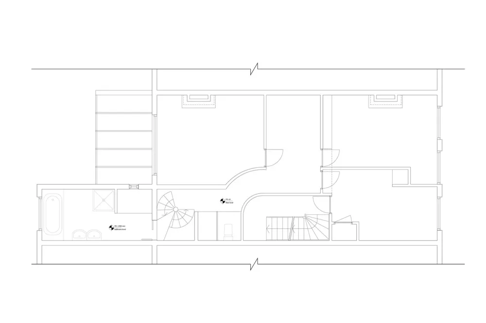
翻新和室内设计的传统住宅建筑的一楼位于de Pijp,在阿姆斯特丹市中心的一个社区。荷兰住宅建筑的特点是空间深而窄,因此创造了一个“通透的平面”。这使得公寓有两个主要的侧面,连接到建筑的前面和后面,因此有两个机会与外部联系起来。一边是迷人的荷兰首都宁静狭窄的街道,另一边是宏伟的建筑内部庭院和一个面向西方的私人花园。
在装修之前,这一层的公寓需要更好的组织。其目的是优化现有房间的使用,并将大量存储空间巧妙地融入生活区。与外部的紧密联系始终是一个关键概念,捕捉美妙的景色,并将其全部带入室内。

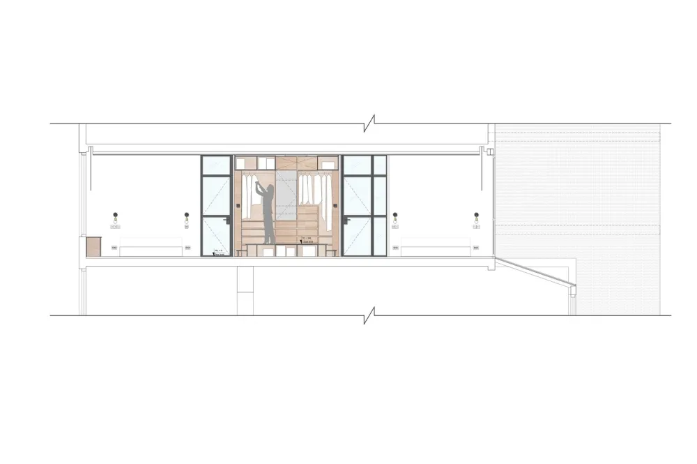
在新的设计中,所有的空间主要围绕“橡树心”组织,这是一个大的共享步入式衣橱,它与地板的两侧、两个主卧室和两个外立面在视觉和空间上进行交流。当步入这一主要的家具作品时,置身于一个完全木质元素之中的感觉被体验到了,只是被头顶的灯光打破了。无论是室内还是室外,这个橡木元素都充满了实用的存储空间,其中一些隐藏和意想不到。
立方体的核心被金属框架的玻璃走廊敏感地触动,这个走廊包含了这个楼层所有房间的入口,提供了连续性,并允许光线深入室内。此外,新设计强调与外部的联系,在后侧立面有一个完整的开放空间通向花园,反映了底层现有的半透明扩建部分。

顶层的新设计辐射出中性的内部氛围,由白色墙壁与深色地板的二项式对比创造,形成了一个永恒和不确定的基础组成。然而,风格也是由明显的材料和纹理决定的,因为所有的家具都使用了橡木,室内设计的大部分细节都使用了复杂的哑光黑色和拉丝青铜元素。
在浴室里,温暖的木材,蓝色的陶瓷手工瓷砖,和天然的熔岩石盆地为这个房间增添了平静和和平的氛围,让居民在一个放松的环境中专注于他们的身体健康。




位置:荷兰 阿姆斯特丹
名称:Frans Halsstraat
年份:2018
摄影:Luuk Smits

