这个项目是对位于这个公社传统街区的一座1959年的家庭住宅进行翻新。这所房子状况良好,原状良好。因此,人们做出了一些决定来纪念这座房子的历史,包括它的体积和一些材料的再利用。
住宅位于440平方米的地块上,是使用南翼作为服务区和储藏室的理想位置,而西翼和北翼将用于厨房和客厅兼餐厅,都在一个连续的空间中。

最初的概念是将业主要求的想法和布局与现有的体量、覆层和布局布局条件相结合。

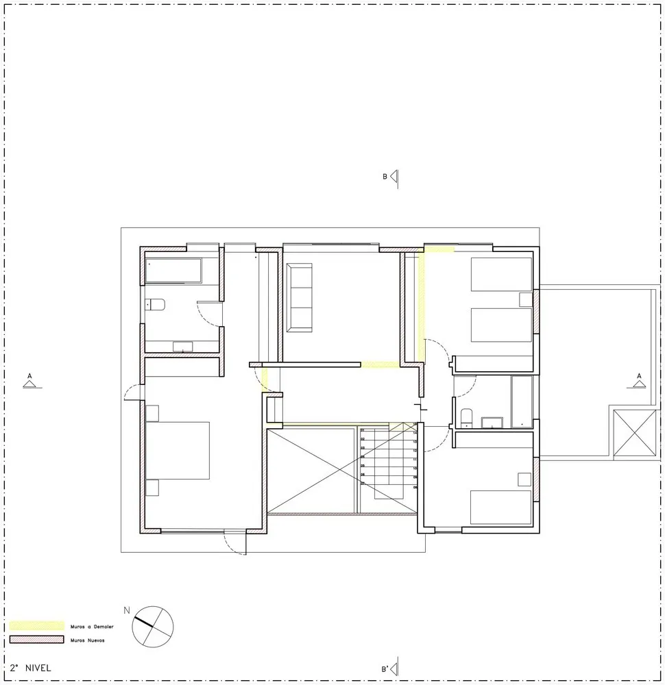
二楼全部采用SIP板,并在一些关键部位进行型钢加固。重新分配卧室区域的空间概念是一个对称的方案,以休息室区域为主体,然后卧室在两侧。


双层通高的入口由贯穿整个区域的天窗定义,其功能是在上午提供自然光,并产生从一楼和二楼到屋顶的交叉通风。

这项工作的执行被认为是为了回收尽可能多的建筑材料,例如门、立面和天花板梁;正是这样,通过重新利用立面和天花板上现有的橡树和落叶松木材,降低了建筑成本,并有助于保持该地区其他建筑的相似性。

保持落叶松木材远离原始立面的决定,让我们有机会将窗户视为与质朴的覆层形成对比的纤细元素。这就是黑色铝型材(在某些情况下使用“隐藏”型材)加上同样为黑色的5mm金属预制框架,使获得这种效果成为可能的方法。



位置:智利
年份:2018
名称:Puerto de Palos House
摄影师:Maria Gonzalez

