Casa FVB位于巴西巴伊亚一个美丽的海滩地区Trancoso。这块1500平方米的土地,虽然不能俯瞰大海,但背对着一个很棒的高尔夫球场。
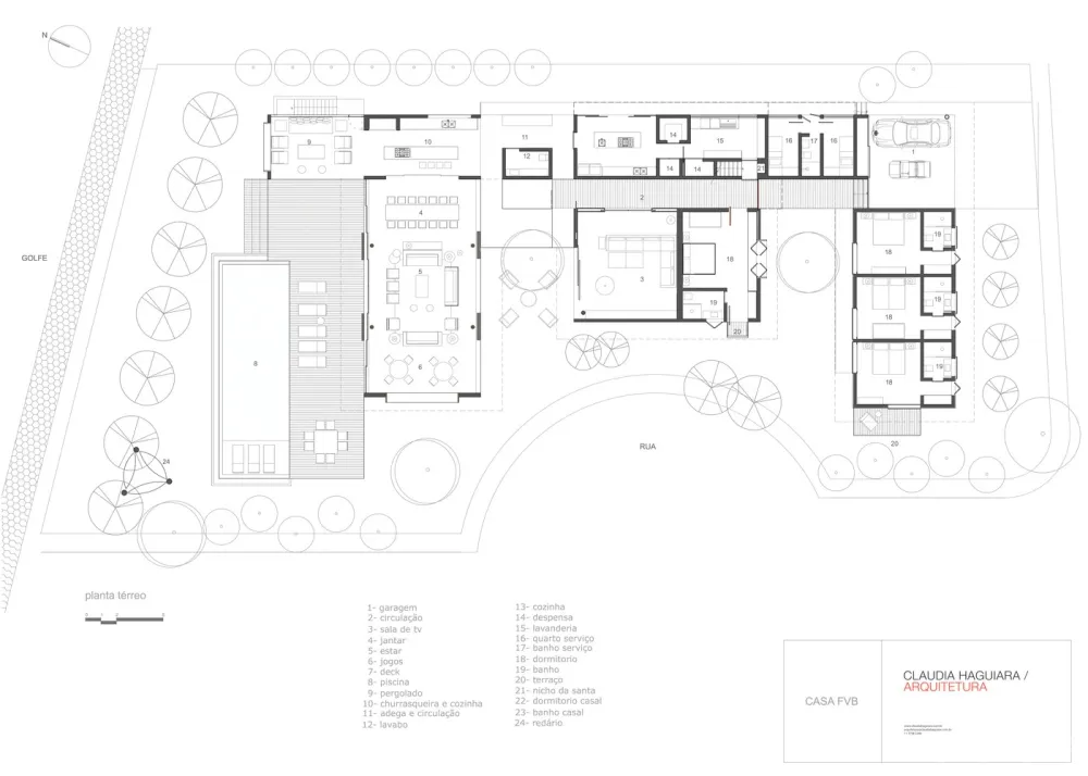
海滨别墅项目应该在狭长的地形上分布一个广泛的项目,作为一个角落地块,有许多限制休憩,以突出户外生活的质量。
为了在所有环境中更好地与外部区域、自然采光和交叉通风相结合,该项目分布在3个街区中,通过轴线相互连接:一条穿过这些街区的松树长廊,其间点缀着花园。
街区在当地建筑和当代建筑中交替出现,混合了殖民建筑及其分支的参考。
第一个街区覆盖着再酯化松木,有两个屋顶的屋顶由木瓦(taubilha)制成,这是该地区的典型。设有开放式车库和3间客房,均可独立通过花园进入,使游客拥有完全的自由和隐私。
第二个街区是一个两层的立方体,以更现代的建筑为特色,白色的墙壁和红色的木桁架混合在一起。
楼下是其中一个女儿的卧室,宽敞的电视房,透过第三个街区的通透性,可以看到高尔夫球场的景色,除此之外还有整个服务区域。楼上是夫妇俩和未来宝宝的套间,也可以作为客人的套间。
第三个街区是社交区,也有瓦片木屋顶(taubilha),有木材和玻璃结构。面对游泳池和高尔夫球场,为住宅花园提供了连续性,当所有滑动门都打开时,它的功能就像一个大露台。
服务区域,作为第二个立方体块的附录,延伸到第三个块,变成一个带有烧烤的美食厨房,通过滑动门与社交区域整合(或不整合),并向游泳池的存在开放。
他卧室的家具是专门设计的,为了使用的灵活性,视客人的类型而定。对于其余的家具,我们强调材料和实用的涂料和大量的颜色的国家设计。该地区和巴西东北部的几个地方的手工艺品可以在房子的所有环境中找到。
第三个街区,社会区域,也有屋顶,有木头和玻璃结构。回到游泳池和高尔夫球场,它延续了房子的花园,就像一个巨大的露台,当所有的门都开着的时候。
服务区域,作为第二个立方体块的附录,延伸到第三个街区,变成了一个美食厨房,里面有烧烤,整合(或不整合)通过通往社会区域的门,在游泳池里开放。
宿舍家具是专门设计的,目的是根据客人的类型来灵活使用。
对于其余的家具,我们更倾向于用实用的材料和色彩来设计国家设计。
该地区的工匠和巴西东北部的几个地方都在房子的所有环境中被发现。





位置:巴西
年份: 2016
摄影师:Christian Maldonado


点点赞赏,手留余香