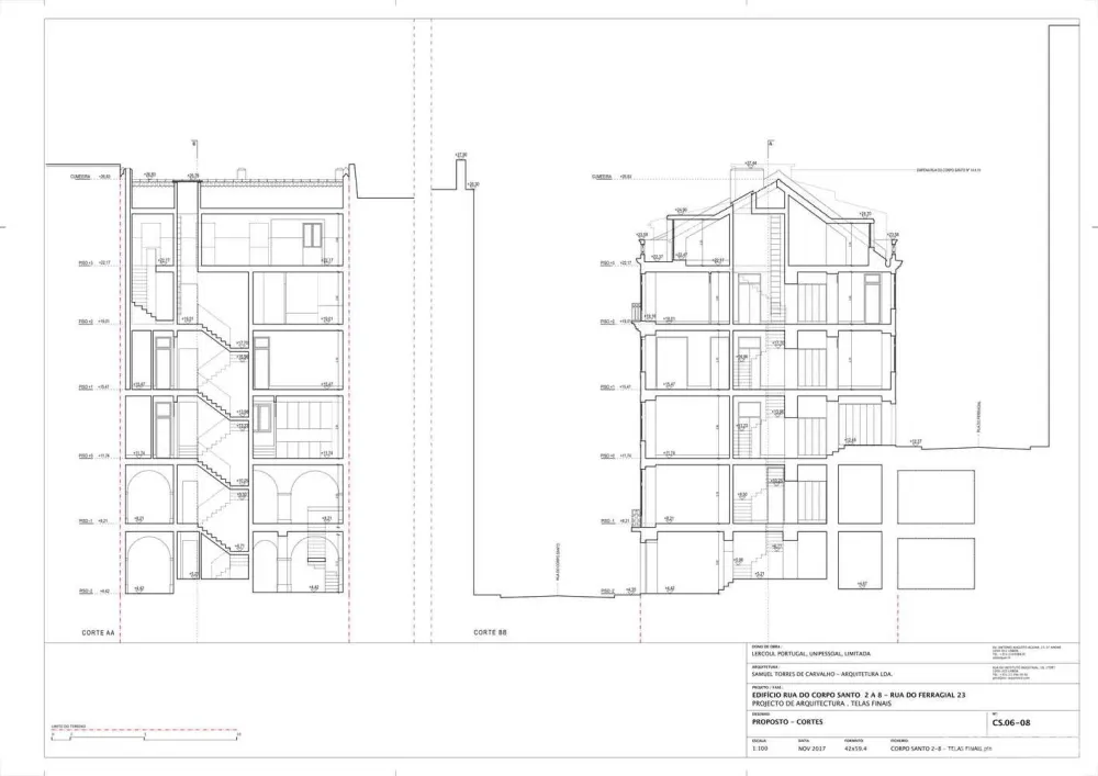
该建筑的入口由两层不同的街道构成,主要入口是通过Rua do Corpo Santo,次要入口是通过7米高的Rua do Ferragial。这种差异源于两个半地下的楼层,位于Rua do Corpo Santo地下。
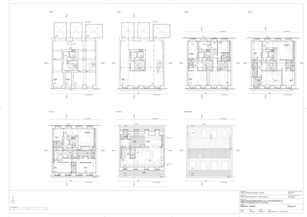
最初的建筑可以追溯到十八世纪,在里斯本城市网络中得到了完美的构架。该建筑共有6层,前两层用于商业,其余四层用于住宅。
在商店一层,前两层的路面是用大石板铺成的,还有由柱子支撑的拱形边缘,由横向拱门加固,这是当时庞贝林建筑的典型特征。同时,Corpo Santo大街的主入口也得到了维护,并修复了石头砌成的中庭。

每个公寓楼层都有两个住宅,这被认为是建筑的初始布局。只有最后一层(mansard)被改变了,而这一层恰好是以复式公寓的形式组织起来的。
在室内,住宅的特点是注重细节,在自然状态下使用石材和木材创造温暖、舒适和现代的环境。
屋顶保留了原有的形状,但重新定位,增加了生活区,并创建了一个小露台,可以欣赏塔古斯河的美景。建筑立面被修复,保留了原有的窗框、石材砌体和金属护栏,共同维护了庞巴林建筑的建筑基础。







位置:葡萄牙
名称:Corpo Santo 6
年份:2018
摄影:Alexander Bogorodskiy

